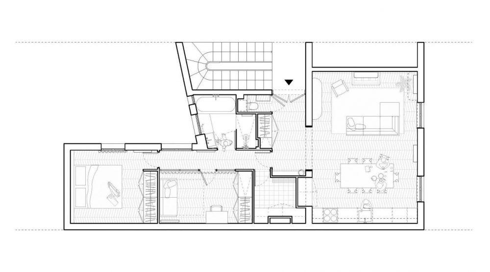
faidherbe / appartement date 2020 lieux paris 11 surface 67 m2 travaux BRL batiment photos BCDF studio